- 200 m² bieten Platz für 6-7 Zimmer, 2-3 Bäder, großzügigen Wohn-Essbereich (Der führende Fertighausanbieter LUXHAUS dokumentiert in seiner Übersicht zu 200-Quadratmeter-Häusern typische Aufteilung)
- Baukosten 2026: €3.300-3.800/m² = €660.000-760.000 ohne Grundstück (Aktuelle Marktdaten von Isowoodhaus und dem Statistischen Bundesamt zeigen regionale Unterschiede)
- Architekt-Grundriss: €500-3.000 je nach Komplexität (Eine detaillierte Kostenanalyse von Plan7Architekt, einem etablierten Anbieter für Architektur-Software)
- KI-Software-Alternative: €99-169 einmalig (Eine aktuelle Marktübersicht von EdrawSoft zu KI-gestützten Planungstools zeigt Kostenvorteile)
- 200 m² ist 33% größer als deutscher EFH-Durchschnitt (~150 m²) — ideal für große Familien oder Mehrgenerationenhaus (Verglichen mit dem deutschen Durchschnitt von ~150 m² Wohnfläche)
Wer braucht 200 m²?
Die meisten Familien bauen zu groß.
Das wissen Sie.
Aber ein Grundriss mit 200 qm ist anders. Das ist kein Ballsaal. Das ist kalkulierte Großzügigkeit.
Seien wir ehrlich: Wer 200 m² plant, braucht sie auch. Drei Kinder plus Arbeitszimmer. Oder zwei Generationen unter einem Dach. Oder beides. Verglichen mit dem deutschen Durchschnitt von ~150 m² Wohnfläche (Plan7Architekt) sind Sie 33% über der Norm.
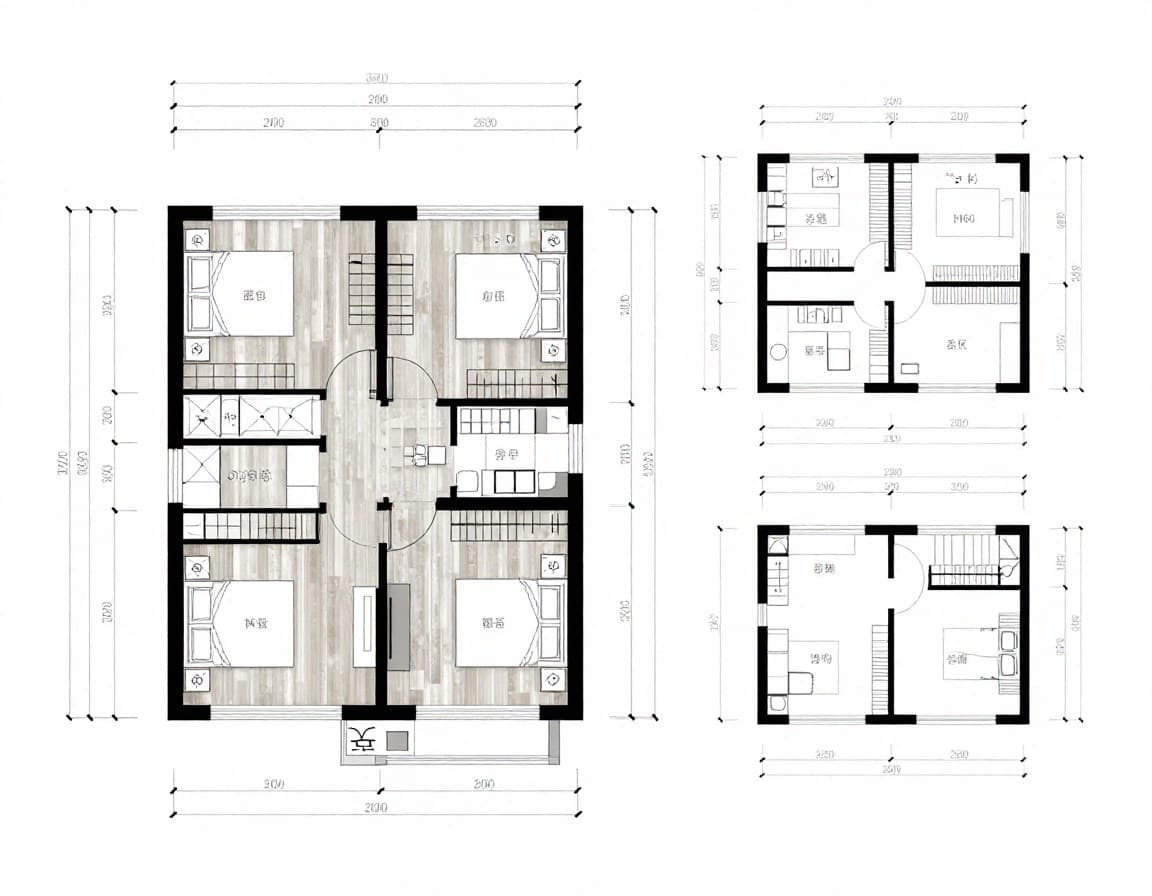
Eine umfassende Analyse von Bau-Welt mit 14 verschiedenen Grundriss-Varianten zeigt die häufigste Konfiguration: 3-4 Schlafzimmer, 2-3 Bäder, offene Wohn-Ess-Küche. Das Beispielprojekt der AUREA Hausmanufaktur, einem renommierten Anbieter aus Berlin, kommt auf 200,15 m² mit 7 Zimmern: Erdgeschoss ~40 m² Wohnbereich mit Gartenzugang, Obergeschoss mit Elternschlafzimmer ~20 m², drei Kinderzimmern und Familienbad mit Sauna.
Das ist kein Luxus. Das ist funktional.





