Auf einen Blick
Warum einen Grundriss lesen können?
Grundriss lesen gehört zu den unterschätzten Fähigkeiten bei der Immobiliensuche. 95 % der Käufer beginnen ihre Suche online (StagerAI 2025). Was sie dort sehen, entscheidet über den nächsten Klick — oder den Absprung.
Die renommierten Daten von Rightmove (Großbritanniens größtes Immobilienportal) zeichnen ein klares Bild: 52 % mehr Klicks erhalten Inserate, die einen Grundriss enthalten. 1 von 5 Käufern filtert Angebote ohne Grundriss direkt aus. Und 42 % der Verkäufer würden keinen Makler beauftragen, der keinen Grundriss im Exposé anbietet.
Die Rechnung ist einfach. Wer einen Grundriss für seine Immobilie versteht, erkennt Raumschnitte, Wandstärken und potenzielle Umbau-Hindernisse — bevor die Kaufentscheidung fällt. Wer ihn nicht liest, kauft blind.
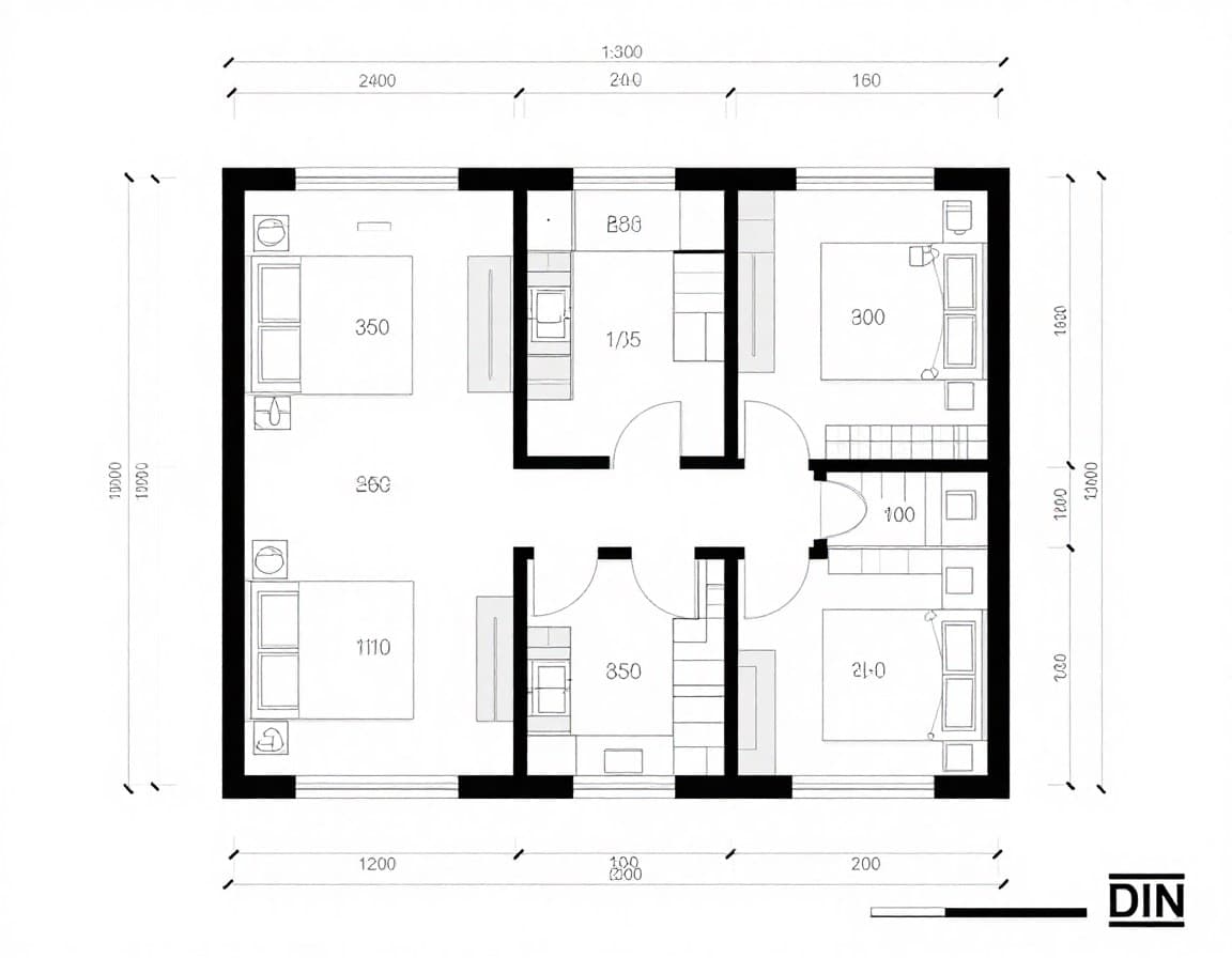
Was zeigt ein Grundriss?
Ein Grundriss ist ein horizontaler Schnitt durch ein Gebäude auf circa 1,20 m Höhe. Stellen Sie sich vor, Sie schneiden das Haus auf Hüfthöhe ab und schauen von oben hinein.



